Appointments are recommended. Click Here to request your personalized appointment.

3752 US-264
Greenville, NC 27834

Mon - Fri: 9:00AM – 5:30PM
Sat: 9:00AM – 4:00PM
Sun: Closed

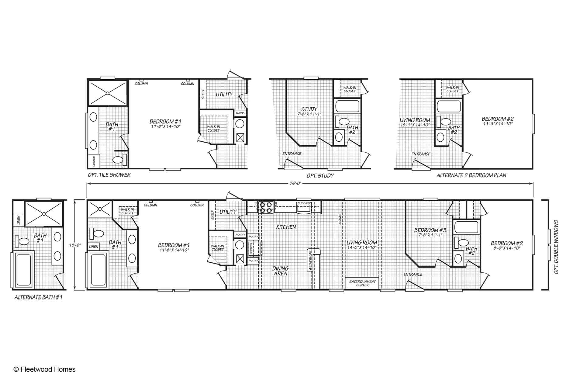
Velocity 16763L

Fleetwood Homes Rocky Mount
Manufactured
On Display
Red Tag Sale • Ready to Go
*Some exterior features shown and listed are optional. All features and options shown may not be available on all models. Please check with your Home Consultant for availability and pricing.
1178

Square Feet

3

Bedrooms

2

Bathrooms

Floor Plan Features

Kitchen Island
Walk-in Shower
Share this floor plan.

Request More Information

Name(Required)
I own land or have land for my new home:(Required)
Trade-In?

Gallery

Click images to enlarge. Some images may not be of actual lot model.
All sizes and dimensions are nominal or based on approximate builder measurements. Down East Homes reserves the right to make changes due to any changes in material, color, specifications, and features anytime without notice or obligations.

Virtual Tour (if available)

Visualize Your Life in This Manufactured Home Floor Plan

Scroll to Top